Back to projects
Professional Engineering Work· Construction Engineering / Project Coordination
Construction Planning and Site Documentation
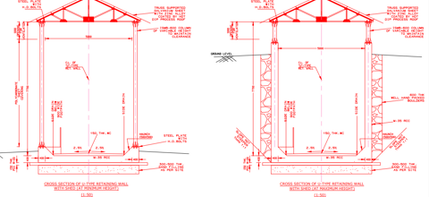
Construction-engineering work for multipurpose cyclone shelter projects under World Bank Project ID P144726. Work included revised AutoCAD site plans, geotechnical and environmental coordination, site inspections, material testing support, Measurement Book / billing documentation exposure, and WBS-Gantt chart planning for 110+ construction sites.
Construction PlanningAutoCADSite SupervisionEstimationMeasurement BooksGantt ChartsConstruction Safety

Project Details
The work included site-plan revisions under World Bank Project ID P144726 and improvements to project tracking and communication.

